Projekt:

Kaffeerösterei, Schwerin

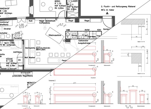
Erweiterung und Neugestaltung 2010

Raumplanung
Möbelentwurf
Ausführungsplanung
Lehmwandgestaltung
Bauleitung

In Zusammenarbeit mit dem Architekturbüro Forejt, Schwerin

Fotografien von Christine Mark,
Dipl. Ing. Innenarchitektin








Raumplanung und Möbelentwurf
 
Kaffeerösterei: Raumplanung und Möbelentwurf
        
Ein Foto zurück   Ein Foto weiter  
 
  Home
  Innenarchitektur
  Wandmalerei
  Grafik
  Kontakt
 

  Kaffeerösterei
  BUGA Ausstellung
  Landhaus
  Tresen im Dom
  Max Schmeling
  Vision & Modelle

Lehmwand Gestaltung

Logo Lebendige Gestaltung - Innenarchitektur und Wandmalerei - Anne Kraatz